
Locuință individuală, strada 16 Februarie, București
Preț: 420.000 Euro (TVA inclus)
Suprafață teren:
211 mp
Amprentă la sol:
105 mp
Suprafață construită:
168 mp
Suprafață utilă:
123 mp
Regim de înălțime:
P+M
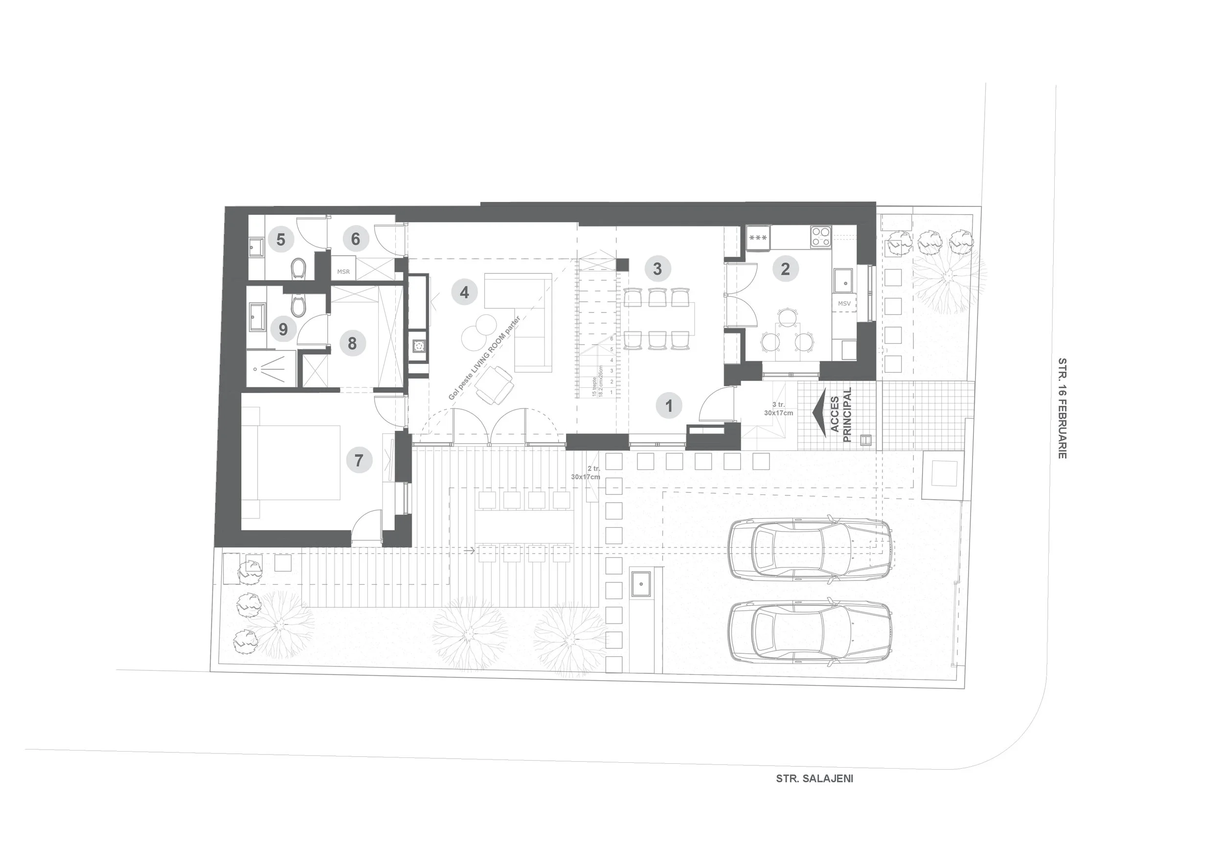
Plan parter
1. Hol intrare S = 3.89mp
2. Bucatarie S = 11.05mp
3. Dining S = 10.76mp
4. Living S= 22.24mp
5. Baie de serviciu S = 2.87mp
6. Depozitare S = 2.68mp
7. Dormitor matrimonial S = 12.97mp
8. Dressing S = 4.86mp
9. Baie matrimoniala S = 3.94mp
Plan mansardă
10. Pasarela S = 5.10mp
11. Hol S = 2.03mp
12. Dormitor S = 13.80mp
13. Camera S = 7.21mp
14. Dressing S = 5.12mp
15. Baie S = 3.71mp
16. Dormitor S = 13.26mp
Mai multe detalii
-
Situată într-un cartier liniștit și verde din București, Urbanos 16 Februarie este o locuință unifamilială proiectată pentru familii care își doresc mai mult decât un simplu spațiu de locuit — caută un stil de viață echilibrat, confortabil și estetic.
Gândită pentru o familie activă, care prețuiește intimitatea dar și momentele împreună, casa oferă un echilibru ideal între funcționalitate și design. Livingul generos, desfășurat pe două niveluri, cu șemineu și deschidere către grădină, devine punctul central al vieții de zi cu zi. Cele trei dormitoare și cele trei băi asigură confortul tuturor, iar bucătăria închisă oferă discreție și ordine într-un spațiu bine organizat.
Locuința beneficiază de o arhitectură aerisită, cu accente contemporane și o relație constantă cu exteriorul. Fiecare metru pătrat a fost gândit cu grijă, iar lumina naturală joacă un rol principal în definirea atmosferei interioare.
Urbanos 16 Februarie nu este doar un proiect imobiliar. Este un exercițiude arhitectură responsabilă, ce se integraza perfect în țesutul urban existent, dar in același timp răspunde nevoilor unui stil de viață contemporan.
-
Terenul se află într-o zonă liniștită de locuințe individuale din cartierul Bucureștii Noi (subzona L1e, cf. PUG București), la un sfert de ora de mers pe jos față de metrou și la 5 minute de mers pe jos de centrul comercial Colosseum. Fiind situat pe colț, la intersecția unei străzi de cartier și un bulevard cu 4 benzi separate prin scuar verde, beneficiază de o expunere și o atmosferă aparte, greu de găsit în orașele mari contemporane.
-
Din punct de vedere functional, casa este alcatuita in jurul unui living cu deschidere vitrata spre curte, cu loc de luat masa si bucatarie. Zona vitrata are rolul de a realiza o legatura vizuala intre interior si terasa generoasa cu locul de luat masa de la exterior.
Locuinta acomodeaza la parter si un dormitor matrimonial, care dispune de o baie proprie si de o zona de dressing. Totodata, grupul sanitar de serviciu, deserveste si nevoia de spalatorie si spatiu de depozitare. Scara deschisa catre zona de living este gandita ca un element arhitectural si face legatura cu mansarda care dispune de doua dormitoare, o camera de serviciu/birou si o baie
-
- infrastructura: grinzi continue din beton armat
- suprastructura: cadre si plansee din beton armat, sarpanta din lemn ignifugat
- inchideri exterioare: zidarie de caramida cu goluri, tamplarie din aluminiu Alumil, Velux-uri automatizate in Living.
- termosistem: polistiren 10 cm parter si spuma poliuretanica 15cm mansarda
- invelitoare metalica
- incalzire in pardoseala si prin calorifere
- echipamente: centrala termica in condensare, semineu pe lemne, boiler bivalent, priza incarcare masina electrica
- finisaje interioare: parchet triplu-stratificat uleiat, periat - la parter, placi ceramice la bai si bucatarie, mocheta la mansarda